New Bern, NC 28562

Customer Support

Mon - Fri: 9:00AM – 5:30PM

Sat: 9:00AM – 4:00PM
Sun: Closed

Hablamos Español

Signature Series / The Country Cottage DVHBSS-6417

Built by: Deer Valley Homebuilders
Manufactured

3D Tour

Floor Plan Details

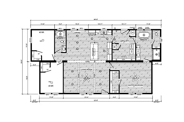
BEDS: 3     BATHS: 2.00     SQ FT: 1680     W X L: 32′ 0″ x 64′ 0″

The Country Cottage DVHBSS-6417 by Deer Valley Homebuilders is a charming manufactured home from the Signature Series, offering 1,680 square feet of comfortable living space with 3 bedrooms and 2 bathrooms. This open-concept layout features a welcoming living area, functional kitchen, and a private master suite, making it ideal for everyday living and entertaining. Built with quality craftsmanship, it provides a perfect blend of comfort and efficiency. Serial Number 12121.

Specifications

Additional Specs: 2x8 Double Perimeter and Marriage Wall Rails / 12" I-Beams with 8' OC Outriggers / Continuous Ridge Beam - Entire Length of Home / Fully Vented 10" Residential Eaves / Fiber Cement Fascia Plank
Exterior Wall On Center: 16” OC
Exterior Wall Studs: 2x6 Exterior Wall
Floor Decking: 23/32” OSB Tongue and Groove Floors
Floor Joists: 2x8 Floor Joist 16” OC HUD / “On Frame Mod” 2x8 Floor Joist 16” On Center with Modular Rafters / “Off Frame Mod” 2x10 Floor Joist 16” On Center with “X” Tension Bracing & Modular Rafters
Interior Wall Studs: 2x4 Marriage and Interior Wall Construction
Side Wall Height: 8’ Residential Smooth Painted Ceilings
Roof Decking: Tech Shield Roof Decking
Insulation Specs: 22-19-40 Energy Star Ready Insulation HUD / 19-19-30 Insulation “On” Frame Mod / 30-19-30 Insulation “Off” Frame
Additional Specs: Exterior Doors Features Steel Jambs / Pex Plumbing T/O Home / Exterior Frost Proof Faucet
Front Door: (38x82) 3680 Steel Front Door with Deadbolt / Raised Panel Vinyl Shutters Front Door Side
Rear Door: (38x82) 3680 9 Light Steel Rear Door with Deadbolt
Shingles: 30 Year Fiberglass Architectural Shingles
Siding: Vinyl Lap Siding & Whole House Wrap with 7/16” TallWall OSB
Window Trim: Decorative 4” Trim Over FAUX Blinds
Window Type: Heritage Windows DP-50 G-7 Enhanced Low E Argon Gas Filled
Exterior Lighting: Deluxe Exterior Coach Lamps
Exterior Outlets: Exterior Electric Outlets 1 on Front 1 on Rear Sidewall and 1 on Porches
Baseboards: 4” Painted Baseboards T/O Home / Upgrade Painted Door Casings T/O Home
Window Treatment: 2” FAUX Wood Blinds T/O
Molding: 4” Painted Crown Molding T/O Home
Wall Finish: ½” Finished Sheetrock T/O Home
Interior Doors: 5 Panel Interior Doors with 3 Black Mortis Hinges
Interior Lighting: 3-can Lights in Dining Room / Glass Light Fixtures
Interior Paint: Sherwin Williams Interior Paint
Carpet Type Or Grade: 25oz. Trackless Carpet with 8lb Re-bond Pad
Additional Specs: Whole House Water Cut Off Valve in Utility Room
Electrical Service: 200 AMP Total Electrical Service / 12/2 Main Circuit Wire with min 20 Amp Breaker / 40/40 Residential Breaker Box
Heat Duct Registers: Perimeter Floor Registers
Thermostat: Ecobee Smart Thermostat
Utility Cabinets: Shelf Over Washer & Dryer / Large Area in Utility Rooms (per print)
Water Heater: 50 Gallon Electric Water Heater
Water Shut Off Valves: Water Shut-Off Valves T/O
Door Hardware: Black Interior Lever Door Handles / Interior Door on Water Heater & Furnace Compartment
Bathroom Cabinets: KITH KCMA Certified Maple Cabinet Doors & Stiles with Birch Plywood Construction / Oversized Base Drawer Bank
Bathroom Sink: Deluxe China Lav with Pop-up Drains
Bathroom Lighting: Black Vanity Lights
Bathroom Flooring: Hand Laid Floor Tile
Bathroom Countertops: Solido Edge High Definition Countertops
Bathroom Faucets: Dual Handle Black Faucets
Bathroom Additional Specs: Decorative Beveled Mirrors / Oversize Linen Closets Most Models
Bathroom Shower: 48” Walk-in Fiberglass Shower with Black Door in Master bath / 60” Fiberglass Tub-Shower guest bath with Deluxe Curved Shower Curtain Rod
Bathroom Toilet Type: Elongated Commodes
Bathroom Bathtubs: Designer Style Fiberglass Tub / Travertine Edge & Back Splash on Porcelain Tile Tub Tops
Kitchen Sink: 3322 Residential Stainless Steel Deep Sink
Kitchen Refrigerator: 26’ Side by Side Refrigerator with Ice & Water in Door
Kitchen Range Type: Designer 30” Electric Range
Kitchen Flooring: Hand Laid Floor Tile
Kitchen Faucets: Single Lever Hi Rise Faucet with Sprayer
Kitchen Drawer Type: 19” Deep Kitchen Drawers with Drawer over each Cabinet Door
Kitchen Dishwasher: Deluxe Cycle Dishwasher with Delay Start
Kitchen Countertops: Solido Edge High Definition Countertops
Kitchen Cabinetry: 36”/30” Staggered Overhead Stained Maple Cabinets / Deluxe Cabinet Pulls on Drawers/Doors / KITH KCMA Certified Maple Cabinet / Doors & Stiles with Birch Plywood Construction / Construction with Adjustable Shelving in Overhead Cabinets
Kitchen Additional Specs: Extra Electric Outlets in Utility & Each End of Island / GFI Protected Electric Receptacles in Kitchen & Bath / Name Brand Electric Appliances
Kitchen Microwave: Over the Range Space Saver Microwave